
creating a connected kitchen in oakton
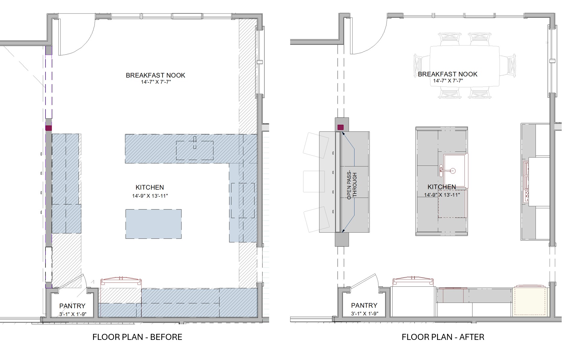
The kitchen in our client’s spacious Oakton home was cut off from surrounding spaces, both by a wall and by an awkward peninsula that made the layout feel cramped. Our goal with this renovation was to improve connectivity and flow with the adjoining spaces while enhancing the kitchen’s overall functionality.
Opening up the wall between the kitchen and the family room presented some challenges because the wall contained both ductwork and a structural post that had to remain. We looked at this as an opportunity to define the space with a pass-through island anchored by two columns that cleverly concealed the infrastructure. Unnecessary bulkheads were removed to further open up the space and take advantage of the generous ceiling heights.
The new kitchen design includes double islands which helped improve circulation and provide direct access to the breakfast nook. At the opening, we opted for a two-tiered countertop with bar-height seating ideal for entertaining. The distinct blue-green island offers a pop of color against the backdrop of white counters, cabinets and backsplash. The textured zellige-style subway tile adds visual interest and pairs beautifully with the subtly veined quartz countertops, keeping the space feeling light and bright.
The new layout transforms the kitchen’s flow and the bright and welcoming breakfast nook is no longer cut off by the old peninsula. The center island provides a generous amount of prep space and storage and houses a stainless farmhouse sink, dishwasher, and trash roll-outs on one side with an additional bank of cabinets on the other. A new 6-burner gas cooktop was installed with a custom wood hood above. We incorporated a new microwave drawer and were able to repurpose our client’s existing double wall ovens and refrigerator that were only a few years old.
Custom built-ins in the family room were designed to coordinate with the finishes in the adjacent kitchen; they provide both display space and closed storage. To visually connect the spaces, we replaced the dated tile in the kitchen and carpet in the family room with new hardwood flooring that was carried throughout the main level. The front staircase was refinished to match the new darker oak floors
An existing coat closet near the garage entry was converted into an open mudroom/drop zone. Encaustic inspired tiles with a durable matte finish are perfect for this high traffic area and we carried them into the adjacent hallway, powder room and laundry room which was also given a facelift. Open cubbies, baskets and lots of hooks provide ample storage for an active family of four.
Although the main footprint of the kitchen didn’t change, the reconfigured layout and updated finishes make the kitchen feel significantly larger, brighter and more connected to the rest of the home.








Project Layout
